500KW康明斯發電機KTAA19-G6A散熱器技術參數
2019-11-15
來源: 頂博電力
112826
柴油發電機組散熱器是發電機組配備中不可缺少的重要部件之一,承當給柴油發電機組作業負載時產生的熱量熱量散入大氣以降低冷卻水的溫度,散熱器必須有足夠的散熱面積,并用導熱性好的材料制造。維護好發電機組散熱器也是一項不可忽視的重要工作。
廣西頂博電力設備制造有限公司生產的康明斯發電機組均采用重慶康明斯發動機有限公司的柴油機配套全銅無刷發電機配套而成的發電機組。我公司的柴油發電機組功率30-3000KW,有玉柴、上柴、濰柴、康明斯、沃爾沃品牌眾多,可針對不同不同需求、不同工況進行設計制造柴油發電機組,以充分滿足客戶多樣化的電力需求。以下為頂博電.力的康明發電機組KTAA19-G6散熱器出廠檢驗報告。
康明發電機組KTAA19-G6散熱器出廠檢驗報告
柴油機生產廠家:重慶康明斯發動機有限公司
配機型號:KTAA19-G6/KTAA19-G6A(40℃、50HZ)
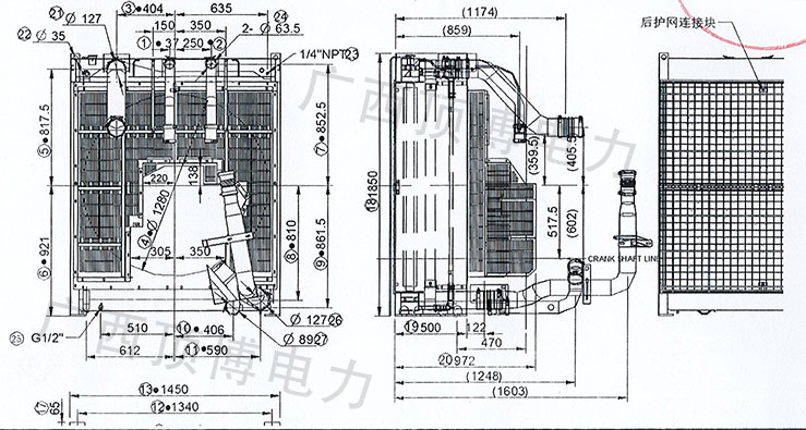
500KW康明斯發電機組KTAA19-G6散熱器構造圖


500KW康明斯發電機組KTAA19-G6散熱器外觀質量
| 檢驗項目 | 檢驗要求 | 檢驗結果符合要求 (OK) | 結果判斷 (Y/N) |
| 散熱芯子外觀 | 1.散熱片片距均勻,不允許兩片壓合在一起,無倒伏破裂 | OK | Y |
| 2.散熱管無彎曲變形和損傷 | OK | Y | |
| 3.散熱片片距均勻,不允許兩片壓合在一起。 | OK | Y | |
| 芯子油漆和表面涂層 | 1.總成按圖紙及客戶要求涂漆。 2.芯子油漆均勻,無脫落和起皮 3、散熱器表面涂層無明顯劃傷、脫落和銹蝕 | OK | Y |
| 散熱器表面 | 1.散熱器外表面應干凈整潔,無灰塵和污跡。 2.散熱器內腔無流動的固體雜質, 3.散熱器的進出口有防塵蓋 4、焊縫無凹凸不平和焊料堆積,周邊無焊渣飛濺 | OK | Y |
| 5、散熱器外表防腐層應均勻美觀、不允許有凹凸不平、起泡、桔皮紋及涂層脫落等缺陷。(頂博電力) | OK | Y | |
| 附件安裝 | 1、水箱蓋與加水口座裝配自如無變形,開啟壓力符合圖紙要求 | OK | Y |
| 2、蒸汽導出管長度及材質符合圖紙要求,外觀完好無破損 | OK | Y | |
| 3、補水管膠管卡箍等安裝位置正確,緊固情況目測良好 | OK | Y | |
| 螺栓緊固情況 | 1.傳動件緊固件扭力符合扭力工藝表 2.連接用緊固件緊固完成 | OK | Y |
| 康明發電機組KTAA19-G6散熱器標志及包裝 | |||
| 產品銘牌 | 具體內容及粘貼位置符合產品圖樣要求。 | OK | Y |
| 配管及隨機零配件 | 按裝箱清單清點,實物齊全,與裝箱清單相符合 | OK | Y |
| 隨機文件: | 裝箱清單、 產品合格證、使用說明書等隨機文件規范齊全 | OK | Y |
| 包裝箱要求 | 包裝箱尺寸及結構按包裝規范執行, 標識內容及要求按產品圖樣要求。 | OK | Y |
http://m.w283.cn
報價:13667715899
推薦文章
- 同樣是150kw,為何它更可靠?因為有一顆強勁的“芯”!沃爾沃柴油發電機組,守護您的業務不斷電 2026-03-14
- 動力巨擎,智控機組——400KW上柴柴油發電機組,重新定義你的電力保障標準! 2026-03-13
- 400KW上柴柴油發電機組,工業級電力保障的王者之選 2026-03-13
- 動力巨擎,應急先鋒——康明斯720KW柴油發電機組,如何定義“可靠”? 2026-03-12
- 工廠備電選多大?直接上硬貨:這臺500kW玉柴發電機組,讓電力永不掉線 2026-03-11
- 2026備電選多大?為什么懂行的老板都選這臺500kW發電機組? 2026-03-11
- 停電不焦慮,這臺康明斯250KW柴油發電機組才是工廠的底氣! 2026-03-10
- 38升V12“心臟”!800KW康明斯發電機組,如何成為高端項目的“必備電力設備”? 2026-03-09
- 關鍵時刻,康明斯400KW發電機組,為你的核心負載提供可靠且穩定的保障! 2026-03-07
- 國際知名大型企業都在采購的發電機,到底強在哪? 2026-03-06






桂公網安備45010702002247